The Silvertip – Portable Cottage
Base: $159,900 | Fully Loaded: $179,900

Well Built with Impeccable Design, the Silvertip is the practical choice.

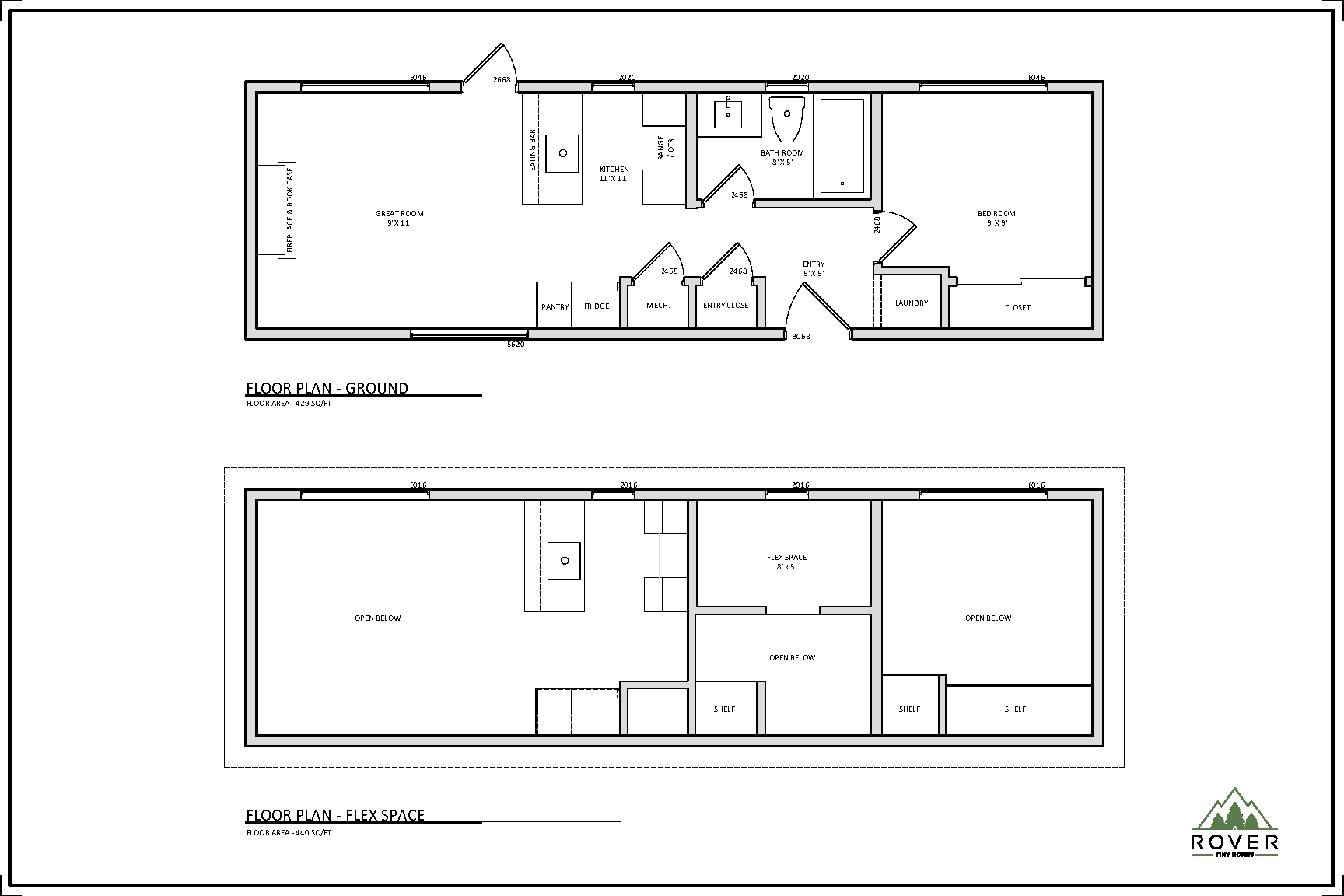
The Silvertip portable cottage combines impeccable design with practical functionality. Whether you have just purchased land for weekend getaways or are looking for a full-time residence, the Silvertip provides the comfort of a traditional home in a beautifully compact space. With features like a dishwasher, shower, washer and dryer, air conditioning, and electric heat, it delivers everything you need while maintaining the warm feel of a rustic cabin. Every Silvertip home is built to meet or exceed the BC building codes, providing you with quality and peace of mind.

Why the Silvertip is the Practical Choice

The Silvertip is designed to make life simpler and more enjoyable. The cabin-inspired interior features 10-foot tongue-and-groove pine ceilings and trim made from reclaimed 100-year-old barn wood, creating a timeless and cozy atmosphere. Built with premium materials and expert craftsmanship, the Silvertip ensures you are getting a durable and beautiful home that stands the test of time.

tiny home kitchen with island, overlooking the mountainside

See for Yourself What Makes the Silvertip Special

Browse our photo gallery to explore how the Silvertip portable cottage combines comfort, functionality, and thoughtful design.

Specifications (Contact us for more information)

The Silvertip can be built to A277, Z241, or Z240-MH certifications:

  • A277 Certification complies with Part 9 of the BC Building Code. These homes are built on a wood frame and are intended for a permanent foundation.
  • Z241 Park Model and Z240-MH Certifications are designed for placement on piers and skirted, making them easy to relocate if needed.

Visit our FAQs section for more information or contact us to discuss the base model with simpler finishes that still provide the same quality construction.

Every fully loaded Silvertip includes:

  • Custom slow-close, high-end cabinets by Newcastle Cabinets
  • Quartz countertops
  • Loft with ladder access
  • Prolok™ metal roof
  • Smart Lap™ siding with cedar shingle accents
  • Underside sheathed with pressure-treated plywood
  • 125-amp service
  • Hot tub connection box
  • Drywall interior with tongue-and-groove pine ceilings
  • Durable vinyl plank flooring
  • Central media box with entertainment connections
  • LED lighting throughout
  • Mini split heating and cooling system
  • 30-gallon hot water tank
  • Stainless steel appliances, including stove, fridge, dishwasher, and washer/dryer combo
  • Delivery within 3 hours of Chilliwack, BC

The Silvertip portable cottage can also be built as a Z241 Park Model, Z240-MH mobile home, or A277 modular home, giving you flexible options to match your property and lifestyle needs.

We have the Perfect Tiny
Home for Your Property.
Let’s Get Started.
We have the Perfect Tiny
Home for Your Property.
Let’s Get Started.